Vuokrattavat
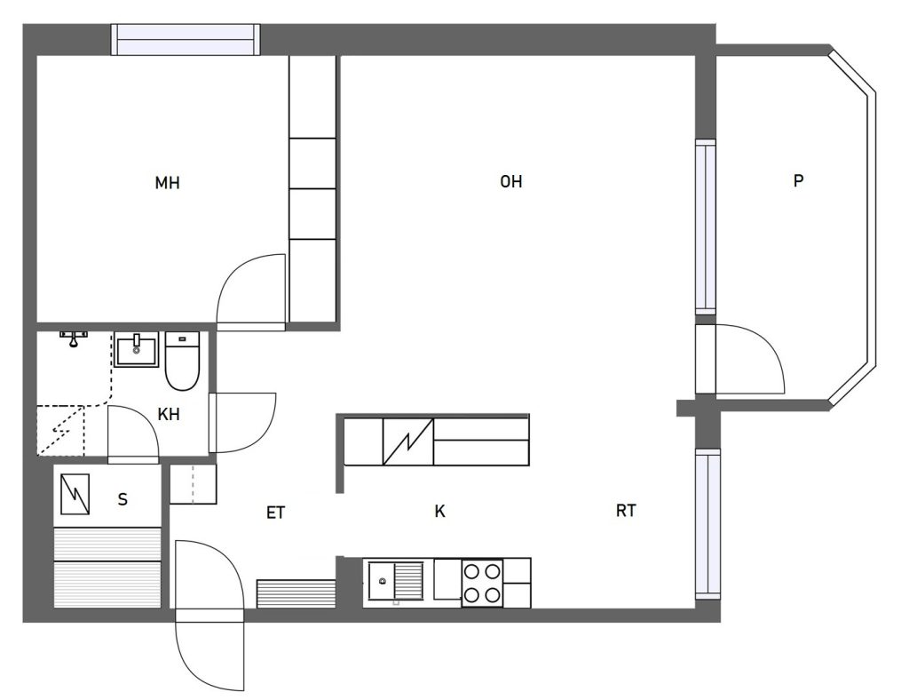
KERROSTALOSSA 2h+k+s=52 m²
- Rakennettu 1984
- 1. krs, kaksi rappusta noustava
- Lasitettu parveke
- Ei lemmikkieläimiä
- Vakuus: 2 kk:n raha / 2 henkilötakaajaa
- Vapautuu 1.4.2026
Asuinkustannukset
- Vesimaksuennakko 15-20 €/hlö/kk, tasaus huoneistokohtaisen mittauksen mukaan
- Autopaikka 5 €/kk, saatavuus varmistettava erikseen
- Autokatospaikka 30 €/kk
- Oma sähkösopimus
Huoneistossa
- Uusittu keittiön lattiapäällyste ja saunan kiuas (kuvissa näkyy edeltävä tilanne)
- Kylpyhuoneessa liitäntä pyykkikoneelle
Taloyhtiössä
- Tehty mm. ikkuna- ja parvekeoviremontti, uusittu lukitus, huoltomaalattu parvekkeet
- Yhteisissä tiloissa irtainvarastot, pyykkitupa, kylmiö
Vuokra
630 €/kk





















