Vuokrattavat
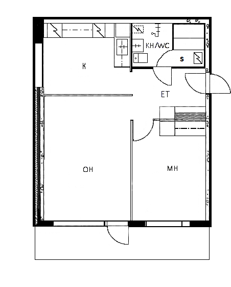
KERROSTALOSSA 2h+k+s=52 m²
- Rakennettu 1981
- 3. krs, lasitettu parveke
- Lemmikkieläimet tapauskohtaisesti
- Vakuus: 2 kk:n raha / 2 henkilötakaajaa
- Vuokrasopimuksen kesto vähintään 1v
- Heti vapaa
Asuinkustannukset
- Vesimaksuennakko 20 €/hlö/kk, tasaus huoneistokohtaisen mittauksen mukaan
- Autopaikka 10 €/kk
- Oma sähkösopimus
Huoneistossa
- Uusittu jää-pakastinkaappi ja liesi noin 2016
- Kylpyhuoneessa liitäntä pyykkikoneelle
Taloyhtiössä
- Tehty mm. ikkuna- ja parvekeoviremontti
- Yhteisissä tiloissa irtainvarastot, pyykkitupa, ulkoiluvälinevarasto
Vuokra
588 €/kk























