Osakehuoneistot
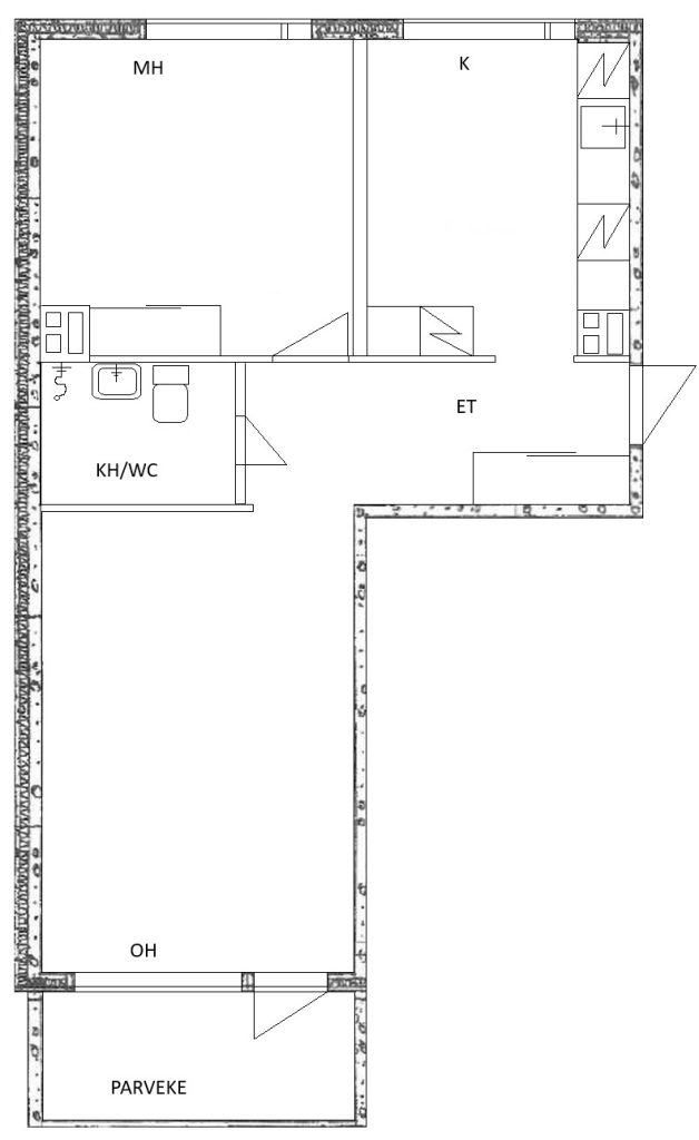
Kerrostalossa 2h+k=55 m²
- Rakennettu 1972
- 1/3 kerros
- Lasitettu parveke etelään
- Huoneistossa on tehty peruskorjaus vuonna 2021, jolloin on uusittu keittiö kodinkoneineen, kylpyhuone, seinäpinnat, lattiakatteet ja asennettu uudet komerot
- Yhtiössä on tehty runsaasti perusparannuksia mm. uusittu 2002 lukitus, 2003 käyttövesiputkistot pinta-asenteiseksi ja asennettu vesimittarit, 2008 kunnostettu talon julkisivut ja parvekkeet, uusittu ikkunat- ja parvekeovet, 2012 porrashuoneiden ja kellarikäytävien kunnostus, 2018 peruskorjattu saunaosasto, 2020 kunnostettu vesikate sekä 2024 uusittu ulko-ovet, kerrostaso-ovet ja lukitus.
- Kaukolämpö, energialuokka F2013
- Vuokrattu
- Keskustassa Kankaan urheilualueen äärellä
Myyntihinta
69 331,29 €
Velkaosuus
2 668,71 €
Velaton hinta
72 000 €






















