Myytävät
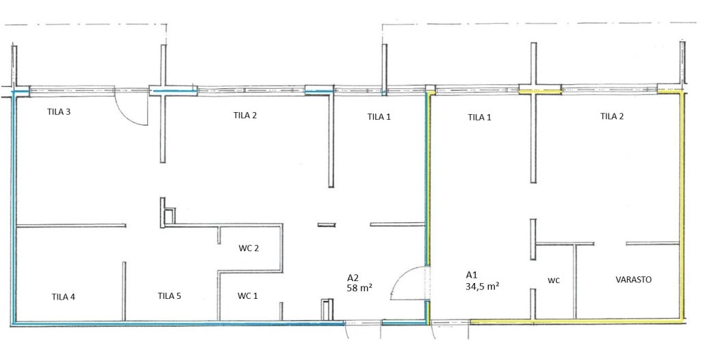
Toimistohuoneistot 2 kpl
- A 1) 2h+varasto=34,5 m² (9 000 €)
- A 2) 3h+kahvio+varasto=58 m² (14 000 €)
- 1/3 kerros, ei portaita
- Huoneistojen välille on avattu oviaukko
- Huoneistot ovat perusteellisen pintaremontin tarpeessa
- Huoneistot ovat ostettavissa myös erillisinä
- Käyttötarkoituksen muutos esimerkiksi asuinhuoneistoksi edellyttää asunto-osakeyhtiön suostumusta ja rakentamisluvan saamista käyttötarkoituksen muutokselle.
- Talo on rakennettu 1973
- Kaukolämpö, energialuokka F2013
- Yhtiössä mm. 2003 uusittu ikkunat ja parvekeovet, 2011 kunnostettu piha, 2021 uusittu kerrostaso-ovet ja lukitus, 2023 uusittu tonttivesijohto, 2024 palovaroittimet ja putkistojen kuntotutkimus, 2025 iv-hormien puhdistus, liittyminen valokuituun
- Heti vapaa
- Ydinkeskustassa
Velaton hinta
23 000 €


























