Vuokrattavat
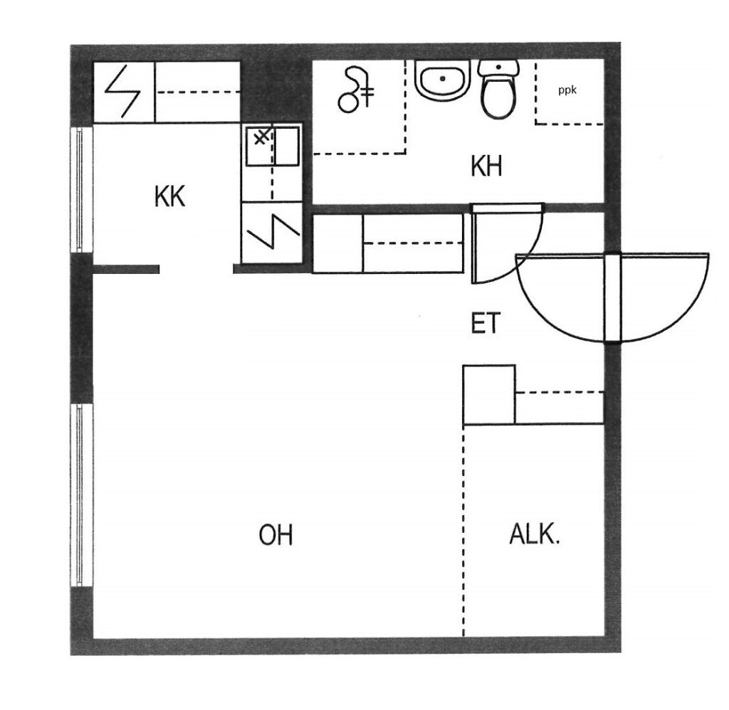
KERROSTALOSSA 1h+kk=27 m²
- Rakennettu 1978
- 7. krs, hissitalo
- Ei parveketta
- Ei lemmikkieläimiä
- Vakuus: 2 kk:n raha, ehkä henkilötakaukset
- Heti vapaa
Asuinkustannukset
- Vesimaksu 21 €/hlö/kk (kiinteä maksu)
- Saunavuoro 10 €/kk
- Autopaikka 6 €/kk
- Oma sähkösopimus
Huoneistossa
- Tehty pintaremonttia ja uusittu jääkaappi-pakastin 2015
- Kylpyhuoneessa liitäntä pyykkikoneelle
Taloyhtiössä
- Tehty mm. ikkuna- ja parvekeoviremontti, uusittu hissi, uusittu lukitus ja talon ulko-ovi
- Yhteisissä tlioissa irtainvarastot, kylmiö, pyykkitupa (ei konetta), saunatilat, ulkoiluvälinevarasto
Vuokra
430 €/kk




















