Vuokrattavat
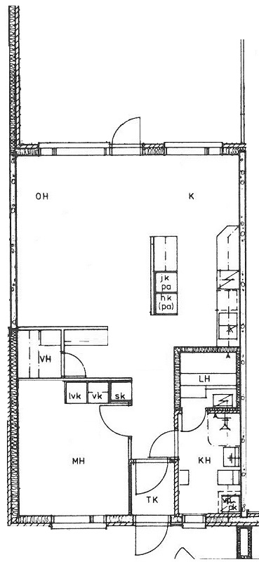
RIVITALOSSA 2h+k+s=58 m²
- Rakennettu 1989
- 1-tasossa
- Valokatettu terassi ja oma takapiha
- Kaukolämpö
- Lemmikkieläimet tapauskohtaisesti
- Vakuus: 2 kk:n raha
- Vapautuu 1.6.2026, mahdollisesti hieman aiemmin
Asuinkustannukset
- Vesimaksuennakko 10-20 €/hlö/kk, tasaus huoneistokohtaisen mittauksen mukaan
- Autopaikkamaksu 10 €/kk
- Oma sähkösopimus
Huoneistossa
- Uusittu lattia- ja seinäpinnat sekä keittiön liesi, jääkaappi-pakasti ja astianpesukone 2022
- Keittiössä valmiina astianpesukone
- Kylpyhuoneessa liitäntä pyykkikoneelle
Taloyhtiössä
- Tehty mm. ikkuna- ja parvekeoviremontti, uusittu ulko-ovet ja lukitus
- Huoneistojen edustalla omat ulkovarastot
- Yhteisissä tiloissa ulkoiluvälinevarasto ja kylmiö (ei kylmäkäytössä)
Vuokra
740 €/kk



































