Osakehuoneistot
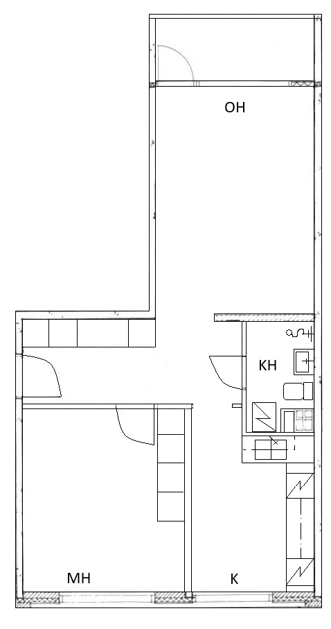
Kerrostalossa 2h+k=56 m²
- Rakennettu 1971
- 3/3 kerros
- Lasitettu parveke länteen, kaunis rantamaisema Porovedelle
- Huoneistossa mm. remontoitu kylpyhuone 1990-luvulla, uusittu keittiö ja tehty pintaremonttia 2015
- Yhtiössä mm. uusittu kellarikerroksen käyttö- ja kiertovesiputket, kunnostettu rappukäytävät 2001, tehty piharemontti 2004, uusittu lukkopesät 2005, uusittu vesikatto, vesikourut ja syöksyt, huoneistojen ikkunat ja parvekeovet, peruskorjattu länsipuolen julkisivu ja parvekkeet 2021
- Kaukolämpö, e-lk D2018
- Vuokrattu
- Keskustassa uimarannan läheisyydessä
Myyntihinta
36 627,99 €
Velkaosuus
17 372,01 €
Velaton hinta
54 000 €























