Osakehuoneistot
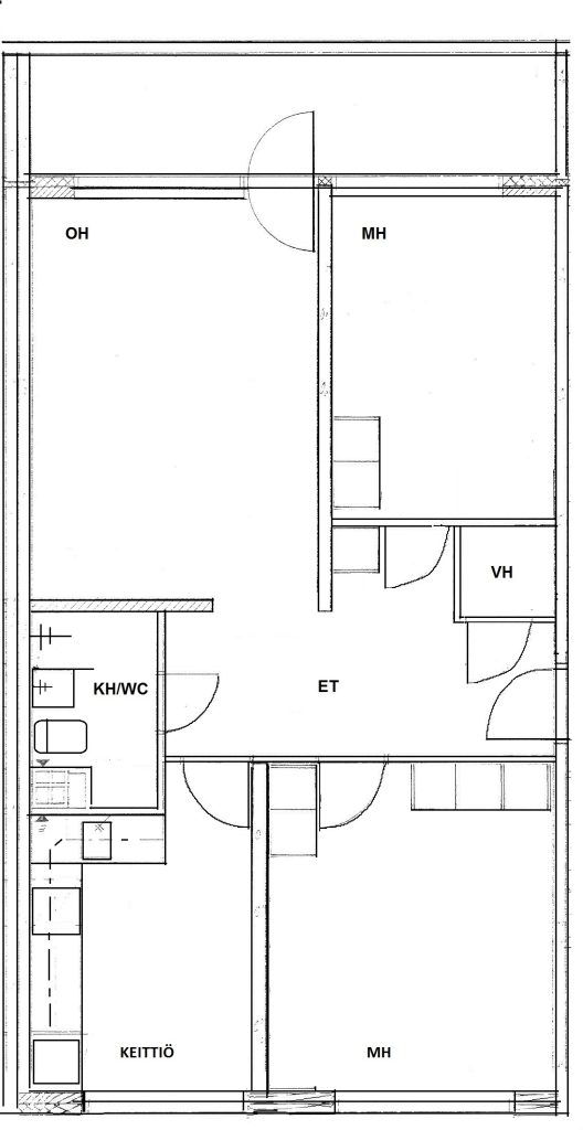
Kerrostalossa 3h+k=70 m²
- Rakennettu 1971
- 1/3 kerros
- Lasitettu parveke länteen, kaunis rantamaisema Porovedelle
- Huoneistossa mm. remontoitu kylpyhuone ja keittiö 2000-luvun alussa, tehty pintaremonttia 2010 ja 2017
- Yhtiössä mm. uusittu kellarikerroksen käyttö- ja kiertovesiputket, kunnostettu rappukäytävät 2001, tehty piharemontti 2004, uusittu lukkopesät 2005, uusittu vesikatto, vesikourut ja syöksyt, huoneistojen ikkunat ja parvekeovet, peruskorjattu länsipuolen julkisivu ja parvekkeet 2021
- Kaukolämpö, e-lk D2018
- Vuokrattu
- Keskustassa uimarannan läheisyydessä
Myyntihinta
47 284,98 €
Velkaosuus
21 715,02 €
Velaton hinta
69 000 €























