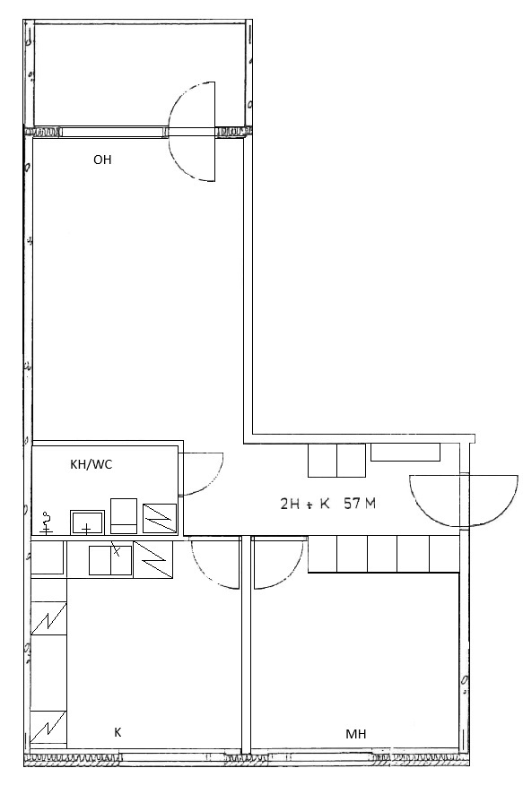
Osakehuoneistot
Kerrostalossa 2h+k=57 m²
- Rakennettu 1979
- 2/3 kerros
- Lasitettu parveke länteen
- Huoneistossa laatoitettu ja vesieristetty kylpyhuone 2011
- Yhtiössä mm. tehty julkisivu- ja parvekeremontti 2010, uusittu lukitus 2011, ikkunat, parvekeovet 2013 ja vesikate 2024
- Kaukolämpö, energialuokka D2018
- Vuokrattu
- Keskustassa palveluiden lähellä
Myyntihinta
32 923,27 €
Velkaosuus
6 076,73 €
Velaton hinta
39 000 €




















