Osakehuoneistot
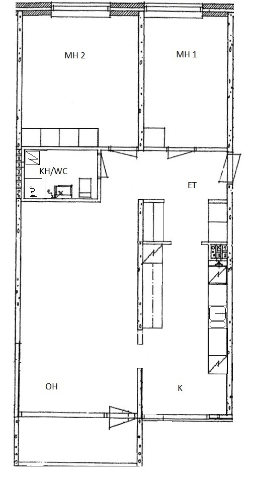
Kerrostalossa 3h+k=76 m²
- Rakennettu 1967-68
- 1/3 kerros
- Lasitettu parveke etelään
- Asunnossa on uusittu keittiö 15, kylpyhuone 22
- Yhtiössä tehty runsaasti perusparannuksia, mm. vesikatto 05, ikkunat 12, lukitus 14, LVIS-remontti 22, patolevytys ja salaojat 25
- Kaukolämpö, e-lk D2018
- Kankaan liikunta-alueen äärellä
- Lyhyt matka keskustaan
Myyntihinta
51 494,87 €
Velkaosuus
33 505,13 €
Velaton hinta
85 000 €




















