Omakotitalot
Rakenteilla olevat omakotitalo ja autotalli
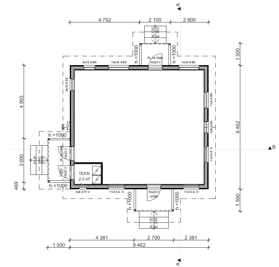
- Omakotitalo: 2h+tupak+s=66 m² (80 krs-m², kesken)
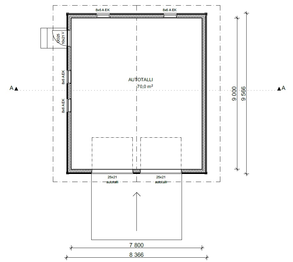
- Autotalli 70 m² (80 krs-m², kesken)
- Molempien rakennusten rakentaminen on aloitettu 2024, valmiusaste on n. 62 %
- Rakennukset on rakennettu Omatalon suurelementeistä
- Sisäpuolen työt tekemättä, joten huonejakoa voit suunnitella omien tarpeittesi mukaisesti
- Sähköliittymä on, vesi lähteestä
- Jätevesijärjestelmänä maasuodattamo
- Energialuokka B2018
- Kiinteistön pinta-ala on 1,9700 ha, josta pihapiirin ulkopuolinen osa on metsätalousmaata
- Pihapiirissä lisäksi purkukuntoiset pihasauna ja varasto
- Sonkajärvi 8 km, Iisalmi 21 km
Velaton hinta
85 000 €





















