Osakehuoneistot
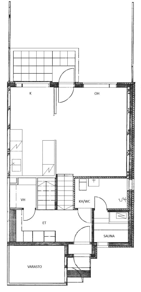
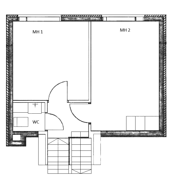
Rivitalossa 3h+k+s=77 m²
- Rakennettu 1992
- Piha-alue länteen
- Huoneistossa mm. remontoitu keittiö, kylpyhuone ja sauna n. 2005-2006, tehty pintaremonttia 2007
- Yhtiössä mm. uusittu terassiovet 2015, kiertovesipumppu 2016, ovet ja lukitus 2019, pinnoitettu katot 2021 ja uusittu kaukolämmönvaihdin 2022
- Kaukolämpö, energialuokka D2018
- Heti vapaa
- Keskustaan 2,7 km
Velaton hinta
113 000 €




























