Osakehuoneistot
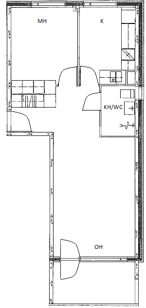
Kerrostalossa 2h+k=49,5 m²
- Rakennettu 1981
- 3/3 kerros, läpitalon huoneisto
- Lasitettu parveke länteen
- Huoneistossa saneerattu kylpyhuone ja tehty pintaremonttia 2019
- Yhtiössä mm. uusittu vesikate 2021, ikkunat 2020, lämmönjakokeskus 2017, tehty parvekkeiden peruskorjaus 2011, kunnostettu porraskäytävät 2008 sekä kunnostettu sokkeli ja piha-alue 2003
- Kaukolämpö, energialuokka D2018
- Heti vapaa
- Keskustan palveluiden äärellä
Myyntihinta
50 120,12 €
Velkaosuus
1 879,88 €
Velaton hinta
52 000 €





















