Vapaa-ajan asunnot

Koljosenniementie 59, IISALMI
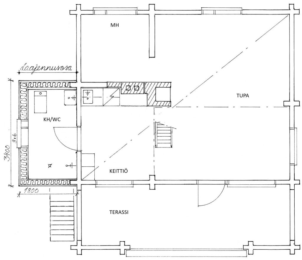
VAPAA-AJAN ASUNTO Tupa+mh+k+kh/wc=n. 40 m² + parvi n. 20 m² (pohjanala)
110 000 €
Palaa kohteisiinVapaa-ajan asunto Tupa+mh+k+kh/wc=40 m² + parvi n. 20 m² (pohjanala)
- Rakennettu 1986, laajennettu 2001
- Sähkölämmitys, varaava takka, ilmalämpöpumppu
- Vesiosuuskunnan vesi- ja viemäriliittymät
- Pihapiirissä rantasauna, liiteri/varasto ja lettukatos
- Haapajärven rannalla ilta-aurinkotontti 2 300 m², länteen avautuvaa rantaviivaa n. 40 m
- Osa irtaimesta sisältyy kauppaan
- Iisalmeen 20 km
Velaton hinta
110 000 €








































